Description
48 and 50 Charles Street will be traditionally styled, yet contemporary, detached family homes, set in the charming fishing village of Pittenweem in the East Neuk of Fife.Construction is due to begin in May 2012. A non-returnable deposit of £1,000 will be required to secure a plot, and a further £5,000 will be payable on the conclusion of missives. These payments will be deducted from the purchase price of the property.
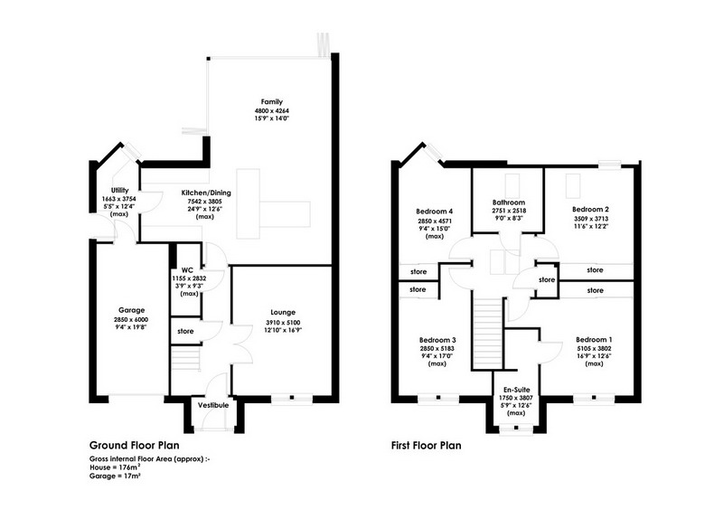
Property Details
- 4 bedrooms (1 en suite).
- Lounge.
- Openplan kitchen / dining /family.
- Bathroom and WC.
- Single integral garage.
Mileage / Location
- St Andrews: 11 miles
- Dundee: 24 miles
- Perth: 41 miles
- Edinburgh: 48 miles
Accommodation
The properties, each approximately 176m², are mirror images of each other, and in summary comprise a lounge, large open plan kitchen, dining and family room with a glass gable, and fold and slide doors to the rear, utility room, and a ground floor WC. On the first floor are four bedrooms (master en suite) and a family bathroom. There is also a single integral garage.All Interiors can be customised to individual client requirement, ensuring each house will be turned into a unique home, reflecting the purchaser's individual needs, style and taste.
Specification
Kitchen / Utility
- Bespoke Designer kitchen by Vidaco.
- Generous budget included within purchase price.
- Integrated Siemens appliances.
- Fully customisable design (Subject to build programme).
Bathrooms and En-Suite
- Premium sanitary ware.
- Extensive range of bathroom products to choose from.
- Heated towel rails.
- Bathroom by Vidaco.
Heating, Lighting & Energy
- High efficiency boiler with a flue gas heat recovery device at heart of heating / hot water system.
- Pressurised hot water system provides showers with a consistently high flow rate.
- Lighting system uses 75% low energy bulbs.
- House fabric constructed to new thermal and air tightness standards giving greater thermal efficiency.
Communication and Technology
- CAT5 wiring infrastructure allows flexible positioning of wired telephone and broadband access.
- Lounge pre-wired for upgrading to a 5.1 home cinema system.
- Dedicated internet ready / HD TV positions in Lounge, kitchen and master bedroom.
Acoustic Insulation
- All interior walls and ground floor ceilings acoustically insulated to limit noise disturbance between rooms.
Storage
- Fitted wardrobes with internal fixtures to all bedrooms.
- Space has been exploited throughout each house to provide storage in the upper and lower hall areas.
Other Noteworthy Design Details
- Family room with vaulted feature ceiling, glass gable and fold and slide doors to 2 elevations to maximise natural lighting.
- Stairs: Glass & steel handrail / balustrade.
- Premium internal doors and ironmongery – Wide choice of styles and finishes.
- Vestibule, Lounge and Kitchen doors glazed to allow maximum light penetration.
- Feature skylight/atrium to upper hallway.
- Combe ceilings to upper floor level.
- House Designed to the latest version (2011) of the Building Standards.
Optional Extras – Subject to build programme
- Home automation/audio visual system.
- Fitted floor coverings.
- Garden design and landscaping.
- Upgrade to Air Source heat pump.
Servitude Rights, Burdens and Wayleaves
The property is sold subject to and with the benefit of all servitude rights, burdens, reservations and wayleaves, including rights of access and rights of way, whether public or private, light, support, drainage, water and wayleaves for masts, pylons, stays, cable, drains and water, gas and other pipes, whether contained in the Title Deeds or informally constituted and whether referred to in the General Remarks and Stipulations or not. The Purchaser(s) will be held to have satisfied himself as to the nature of all such servitude rights and others.Possession
Vacant possession and entry will be given on completion.Offers
Offers must be submitted in Scottish legal terms to the Selling Agents. A closing date for offers may be fixed and prospective purchasers are advised to register their interest with the Selling Agents following inspection.Purchase Price
£299,950.Situation
Pittenweem
The East Neuk of Fife boasts a number of fishing villages built around picturesque harbours, sandy unspoilt beaches and rich farmland. Pittenweem's harbour is the main shellfish port for the area. The village has a number of local services including local shops, a pharmacy and a primary school. Secondary schooling is available in Anstruther, a little over a mile away, where there is a supermarket, and a further range of local facilities.There are many golf courses in the area including all the world famous St Andrews courses.
St Andrews, the "Home of Golf", is only 11 miles away. The world famous coastal town has a good range of shops and professional services and is well known for its university. Co-education private schooling is available in St Andrews at St Leonards and other private schools, such as Glenalmond and Strathallan near Perth, and Dundee High School, are also within easy reach.
Access by rail, road and air is good. Cupar and Leuchars have railway station which are on the main Aberdeen to London line and provide a fast link to Edinburgh. There is a dual carriageway and motorway connection to Edinburgh and the airport from Glenrothes.
Location Map
Newsletter